Contact
Call
Address
Email
Home
Portfolio
About
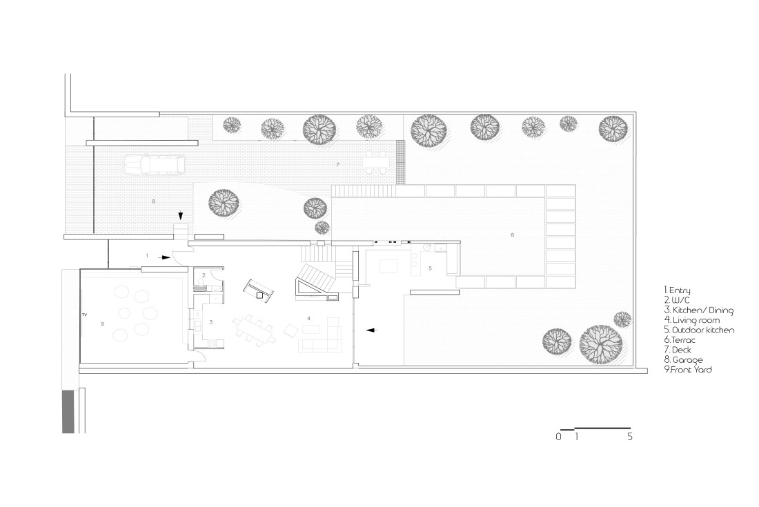
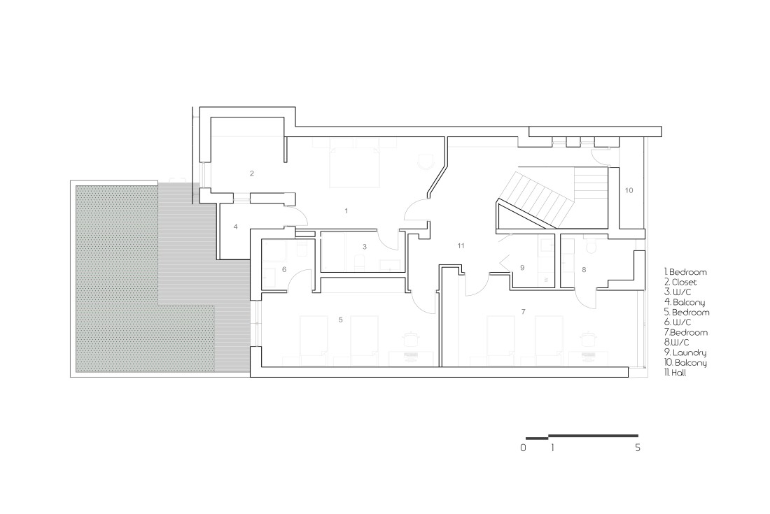
Area: 800m2
Design Team: Garegin Aghuzumtsyan, Nora Toprakjian
Visualization: Martin Martikyan