Contact
Call
Address
Email
Home
Portfolio
About
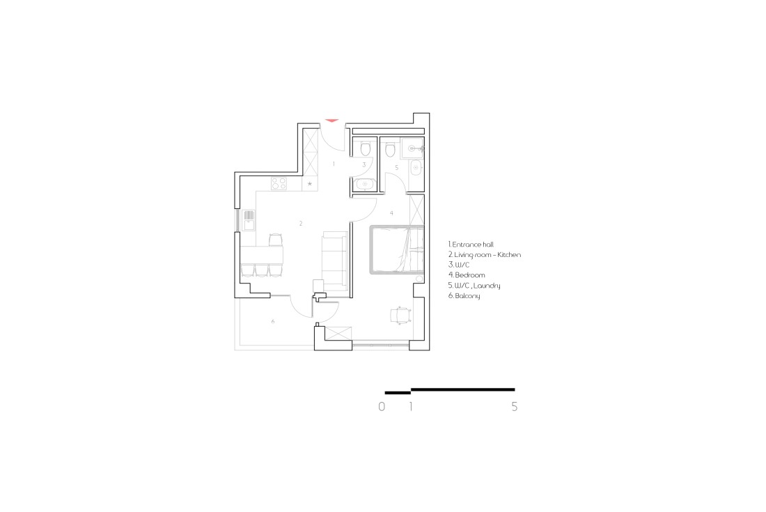
Area: 56 m2
Design Team: Garegin Aghuzumtsyan, Harut Harutyunyan, Arevik Abrahamyan, Maria Mkrtchyan
Visualization: Harut Harutyunyan, Arevik Abrahamyan