Contact
Call
Address
Email
Home
Portfolio
About
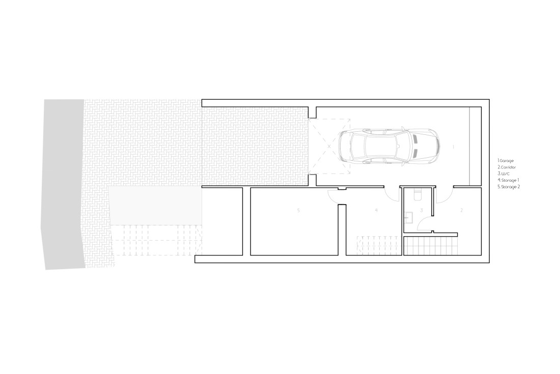
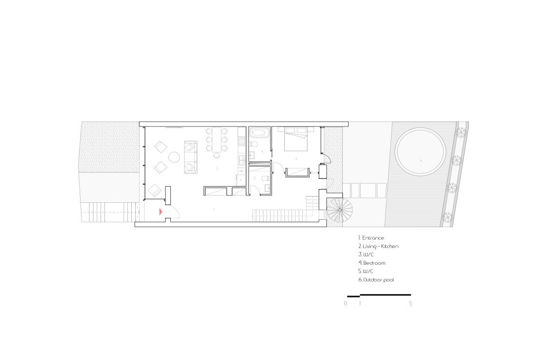
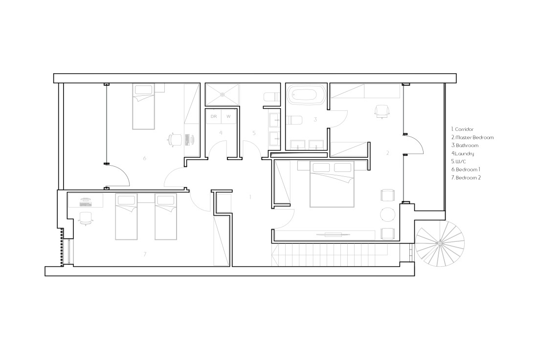
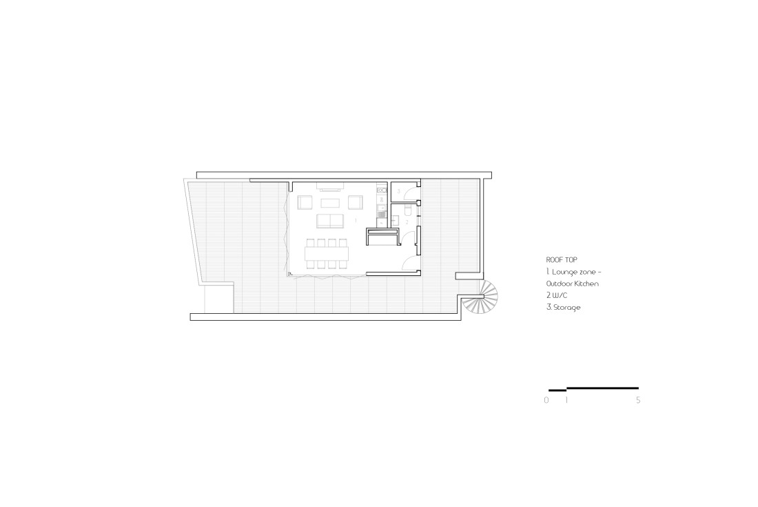
Area: 1,200m2
Design Team: Garegin Aghuzumtsyan, Nora Toprakjian, Emilia Tonoyan
Visualization: Harut Harutyunyan